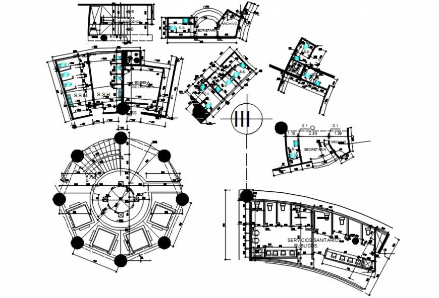
Clinic architectural detail of its plan in AutoCAD
Description
Clinic architectural detail of its plan in AutoCAD its include detail of area with necessary detail of clinic entry way with circular hall area clinic washing area and clinic area with secretary room and area of clinic with necessary detail and dimension.
Uploaded by:
Eiz
Luna

